Lloyd. M.The Art of Preston Bus Station. (2021, 29 noviembre). Tribune. Recuperado 4 de marzo de 2025, de https://tribunemag.co.uk/2021/11/preston-model-bus-station-brutalism-modernism-community-wealth-building?utm_source=chatgpt.com
Contexto.
Preston fue una ciudad pionera en infraestructuras de transporte, construyendo en 1958 la primera autopista de Gran Bretaña, la circunvalación de Preston. Durante la construcción de la estación de autobuses, se planificó una nueva ciudad que integraría Preston, Leyland y Chorley, con una población inicial de 309.000 habitantes, proyectada a crecer hasta 400.000 en la siguiente década.
El proyecto, llamado Redrose, tenía a la estación de autobuses como su centro neurálgico. Sin embargo, las dificultades económicas de los años 70, el cierre de la fábrica de Courtauld en 1979 y la oposición durante el gobierno de Thatcher llevaron a su cancelación. La estación surgió en una época de confianza en la planificación y la inversión en el bien público, con la certeza de su rentabilidad futura. Su remodelación refleja un resurgimiento de esta visión, y Preston se ha convertido en un modelo de creación de riqueza comunitaria, como destacan Matthew Brown y Rhian E. Jones en Paint Your Town Red.
Diseño y construcción.
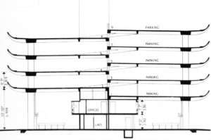
La estación de autobuses de Preston fue construida entre 1968 y 1969, diseñada por Keith Ingham y Charles Wilson de Building Design Partnership (BDP), con el apoyo de Ove Arup and Partners y el topógrafo EH Stazicker. Ingham, un modernista del noroeste de Inglaterra, trabajó en BDP durante dos décadas, influenciado por figuras como Tom Mellor y George Grenfell-Baines, fundador de la firma.
Lo más destacado de la estación, además de sus icónicos balcones curvados, es la alta calidad de los materiales utilizados. Su interior recuerda a los aeropuertos de lujo de los años 60 más que a una estación de autobuses regional. La fachada se construyó con secciones de hormigón prefabricadas en moldes de fibra de vidrio, una innovadora técnica de la época que logró un acabado suave y pulido.
En los elementos y accesorios de toda la estación se puede encontrar madera de iroko resistente, duradera y hecha a mano. La madera es un producto de Ghana y Nigeria. Esos materiales de alta calidad han sido inestimables en la remodelación, con pisos de caucho Pirelli que brillan una vez más y las maderas duras lijadas y restauradas, luciendo como nuevas.
El arquitecto John Puttick destacó el carácter utilitario pero positivo de la estación, resaltando la resistencia y durabilidad de sus materiales originales. Todos los elementos, desde las barandillas hasta la tipografía de la señalización, forman un conjunto coherente, convirtiendo el edificio en una obra de arte total.
- 1.- Unidades de tienda
- 2.- Quioscos
- 3.- Elevador
- 4.- WC
- 5.- Sala de espera
- 6.- Equipaje
- 7.- Bar
- 8.- Telefonos
- 9.- Entrada del metro




