Markowski, M. (2024, 9 agosto). Alexandra Road Estate in London: an icon of brutalism and residential innovation. Magazyn WhiteMAD – Moda, Architektura, Design W Jednym Miejscu. https://www.whitemad.pl/en/alexandra-road-estate-in-london-an-icon-of-brutalism-and-residential-innovation/
Contexto.
El distrito metropolitano de Camden se creó en 1964 a partir de tres barrios distintos: Hampstead, Holborn y St Pancras. Esta diversidad social impulsó una política de vivienda innovadora que buscaba crear viviendas sociales modernas y de alta calidad. Bajo la dirección del arquitecto Sydney Cook, el Departamento de Arquitectura Urbana de Camden desarrolló proyectos ambiciosos, entre ellos el Alexandra Road Estate, diseñado por Neave Brown.
Diseño y construcción.
El plan para la urbanización Alexandra Road se diseñó en 1968 y generó debate dentro del Departamento de Planificación de Camden, que inicialmente se opuso por temor a que la propuesta de baja altura no garantizara la densidad de población necesaria. Sin embargo, Neave Brown presentó soluciones innovadoras para equilibrar densidad y calidad de vida, lo que llevó a la aprobación del proyecto en 1969. La construcción comenzó en 1972. El complejo ocupa un terreno en forma de medialuna y está ubicado junto a Abbey Road , una calle icónica por su asociación con los Beatles. Se compone de tres bloques paralelos dispuestos de este a oeste.
Aunque hoy en día se reconoce como un hito de la arquitectura brutalista, la urbanización se enfrentó a numerosos desafíos durante su construcción y uso. Su diseño innovador resultó complejo y costoso, generando sobrecostes en el presupuesto original. Posteriormente, surgieron problemas con los materiales de construcción , especialmente con el hormigón, que resultó susceptible a la humedad y requirió un costoso mantenimiento. También hubo dificultades con el sistema de calefacción central, integrado en las paredes, lo que provocó problemas de regulación térmica.
“… Construcción baja, para llenar el sitio con definiciones geométricas de espacio abierto, para integrar. Y volver a la vivienda de calidad tradicional, continua, anónima, celular, de fondo repetitivo, que siempre ha sido su virtud…” (Neave Brown)
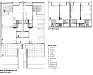
Funcionamiento.
El bloque más alto, de ocho pisos, se diseñó en forma de zigurat para actuar como barrera acústica contra el ruido de la West Coast Main Line, la línea ferroviaria que corre al norte del complejo. Para minimizar las vibraciones del tren, este bloque se apoyará en viajes de goma.
Inspirado en las calles inglesas tradicionales, cada vivienda cuenta con acceso directo a la calle y espacios privados al aire libre. Se construyeron 520 viviendas de diferentes tamaños, con balcones acristalados y paneles correderos interiores. Además de viviendas, el complejo incluye una escuela, club juvenil, aparcamiento y parque.





